1

Room Data Sheet Room Images

I am creating a room data sheet and I would like to include graphics of the plan that match Revit more closely than the default svgRoom image.

I have a roomimageexport task that appears to capture images from a set of specific plan views in Revit.  I am struggling with formatting the [roomimage] to display an image.

Here is the svgRoom image:

 image-1585149476993.png

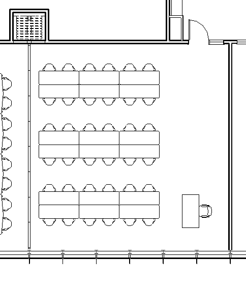
This is the same room in Revit

image-1585149505590.png

4 replies

1

Tom - so you've configured the RoomImage task to export rooms from specific views with specific visibility/annotation.

Once you've done that, rather than [SVGRoom], you should be able to use [RoomImage] - what happens in that case?

-Matt

1

Tom,

That's an odd one.

Can you try specifying the width of the RoomImage, like this:

[RoomImage:300]

?

TK

I made that change and now I get and 'image not available' message.

image-1585309677208.png

TK

Matt -

Yes, I think I have the RoomImage task setup correctly.

image-1585225758868.png

The 'Room Plans' sheet set is a series of plan views with the visibility set.

After I run that this is what I have in the Room Data Sheet:

image-1585225823894.png

I've left the [SvgRoom] in there for comparison until I get the room image to display.

And this is what I get:

image-1585225909196.png

What am I doing wrong?

Tom

DP

I'm having the same issue trying to get the exported room image, not only sized correctly, but also placed on the sheet.  

Dave,

im not clear on what the issue is, but generally you can specify [RoomImage:300] where 300 is the width in pixels. 
Alternatively, there is an option to show the image scaled, but that is much more complex- see the online help…

matt